明治大学 MEIJI UNIVERSITY

2025年度:建築設計2(2年次・春学期)

第1課題 五反田川沿いの住宅

住宅は、おそらく皆さんが最もよく知っているビルディングタイプだろう。しかし、この場合の「知っている」とは、慣れ親しんだイメージに束縛されているということかもしれない。この課題を通して、自分の知っている住宅像を無批判に前提とするのではなく、住宅を「建築」として組み立てることを学んでほしい。建築設計とは、要求された諸条件を解き、人が活動する空間環境へと構成することであり、また敷地内部だけでなく周辺環境をも積極的に再定義することである。この課題では、住宅を空間的・社会的に街にどのように「開く」かを皆さんに問いかけている。実感をもって、敷地内外に広がるコンテクストとそこに展開する人の活動をイメージしながら、案を発展させていこう。

PD課題「五反田川沿いの住宅」 プレゼンテーション・ドローイング

建築の世界では、たった一枚のドローイングがそれまでの人々の価値観や空間に対する認識を大きく変えてしまう、ということが時々起こります。重要な建築作品には、完成した建物とは別に優れたドローイングの存在があったりする・・・そんなことも少なくありません。それだけドローイングは、建築家やデザイナーが建築物に込めた思想や理念を抽象的に表現するうえで重要な役割を果たしてきました。また、実務的にはクライアントや関係者の共感を得たり、コンペで仕事を勝ち取ったりするうえで建築家にとって欠かせないスキルでもあります。本課題は「プレゼンテーション・ドローイング」として、第一課題で設計した住宅を魅力的に表現し、提案内容の本質を直感的に伝達し、意図していなかった作品の展開可能性を示唆するような、そうした表現手段を探求することに挑戦してみてください。

第2課題  イサム・ノグチ美術館

生田キャンパスそば、西三田団地のほど近くに、イサム・ノグチのための私設美術館を設計する。ノグチは彫刻家として知られ、庭園・家具・照明器具・陶芸・舞台・建築など、幅広い作品を残しているが、この美術館は、ノグチ作品の収蔵家が彫刻作品わずか5点を恒久展示するために、住宅地のなかに開設する小規模な美術館である。クライアントからは以下のことが求められている。第1に、展示の入れ替えがある美術館とは異なる空間であり、すなわち、来訪者が特定の展示物にじっくりと向かい合い、来訪者と展示物が深く対話・交流できる空間である。来訪者の経験がどのようなものになるのか、十分に想像を働かせることが設計者に強く求められている。第2に、周辺の住宅地に住む人々(特に子どもたち)が、日常的に美術作品と美術制作に接することができるような、地域に開かれた美術館とすることである。具体的には、上記の作品経験のなかに、屋内外でのワークショップなどを通した学習や交流の場を組み込むことが求められている。以上の要求(設計条件)を十分に理解したうえで、入館から退館までの空間的体験(シークエンス)がこの美術館固有のものとなるよう、空間どうしの関係をデザインしてほしい。

専任教員:連勇太朗(幹事)・庄ゆた夏・川津彩可(幹事補佐)
兼任教員:神田篤宏、篠原明理、富永大毅、廣岡周平、佐々木珠穂、森田夏子、甘粕敦彦
助手:波島諒

優秀作品

※ STUDENT WORKに掲載されている作品はいずれも各学生個人の著作物です。許可のない複製・拡散・二次利用はご遠慮ください。

 

他の科目

  • 第1課題 優秀作品:坂本晴
  • 第1課題 優秀作品:坂本晴
  • 第1課題 優秀作品:坂本晴
  • 第1課題 優秀作品:坂本晴
  • 第1課題 優秀作品:坂本晴
  • 第1課題 優秀作品:坂本晴

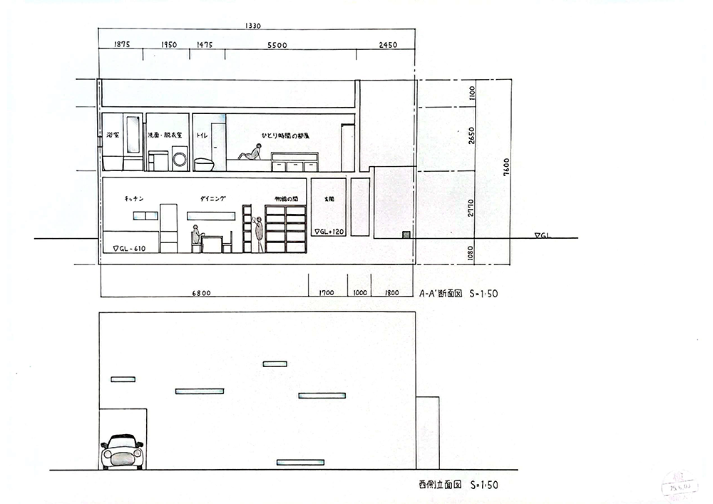
第1課題 優秀作品

坂本晴

講評

エッシャーの絵画をヒントに、複数のレベル差をつけた床で構成された住宅。小さな単位で分割しレベルを変えた床は、迷宮的なシークエンスや、多様な光の透過など、住戸内に多彩な変化を与えている。(甘粕)


  • 第1課題 優秀作品:溝口隆太
  • 第1課題 優秀作品:溝口隆太
  • 第1課題 優秀作品:溝口隆太
  • 第1課題 優秀作品:溝口隆太
  • 第1課題 優秀作品:溝口隆太
  • 第1課題 優秀作品:溝口隆太

第1課題 優秀作品

溝口隆太

講評

五反田川の鯉のぼり という地域行事をきっかけに町内会館のような住宅を作る計画。半公半私のアクティビティとハウスインハウスの形式によって、大きく外部に開きながらも、中間的な領域を持ったグラデーショナルな内外のつながりが生まれている。


  • 第1課題 優秀作品:池田真弥
  • 第1課題 優秀作品:池田真弥
  • 第1課題 優秀作品:池田真弥
  • 第1課題 優秀作品:池田真弥
  • 第1課題 優秀作品:池田真弥
  • 第1課題 優秀作品:池田真弥
  • 第1課題 優秀作品:池田真弥

第1課題 優秀作品

池田真弥

講評

大きな吹き抜け空間を中心に、遊歩道側に開いた小さなボリュームを配置し、プライベート空間のボリュームたちはスキップさせながら放射状にまとわり付かせて内外の関係を巧みに調整している。地形のような外観も敷地と呼応しておりよい。


  • 第1課題 優秀作品:竹内 咲奈
  • 第1課題 優秀作品:竹内 咲奈
  • 第1課題 優秀作品:竹内 咲奈
  • 第1課題 優秀作品:竹内 咲奈

第1課題 優秀作品

竹内 咲奈

講評

図書スペースを設け、公共のスペースと家族のスペースを柔らかく区切ってあり、家族内の間仕切りまで連続的に連なっていることと、本棚にあわせて本を読む場所をバランスよく設えている。空間に対する屋根の配置の仕方もバランスが良い。


  • 第1課題 優秀作品:木元凛
  • 第1課題 優秀作品:木元凛
  • 第1課題 優秀作品:木元凛
  • 第1課題 優秀作品:木元凛
  • 第1課題 優秀作品:木元凛

第1課題 優秀作品

木元凛

講評

重なり合った空間がドアなどの境界なしに繋がりながらも独立している状態を目指し、女性だけの家族という設定によってオープンさを可能にした。作家の家という事で本を開いたような形態が屋内密度にメリハリをつけた。


  • 第1課題 優秀作品:佐藤理沙子
  • 第1課題 優秀作品:佐藤理沙子
  • 第1課題 優秀作品:佐藤理沙子
  • 第1課題 優秀作品:佐藤理沙子

第1課題 優秀作品

佐藤理沙子

講評

蔵書の多い家族設定に対し、一見本に閉じこもったように見えるプラン。中庭は周辺にしか開かれていない。建築家が豪邸しか設計できなくなった時代に住宅を開くというのはどういうことなのか。見る者に考えさせる作品を素晴らしい図面力で表現した。


  • 第1課題 優秀作品:成瀬綾乃
  • 第1課題 優秀作品:成瀬綾乃
  • 第1課題 優秀作品:成瀬綾乃
  • 第1課題 優秀作品:成瀬綾乃
  • 第1課題 優秀作品:成瀬綾乃
  • 第1課題 優秀作品:成瀬綾乃

第1課題 優秀作品

成瀬綾乃

講評

食をテーマに住人像を導き出し、いろんな人が集まれる空間が実現されていました。南北軸から角度を振り、曲面壁によって敷地内に優雅に納め、屋根を低くしたことで内外共に空間的な価値を提示できています。


  • 第1課題 優秀作品:太田海寛
  • 第1課題 優秀作品:太田海寛
  • 第1課題 優秀作品:太田海寛
  • 第1課題 優秀作品:太田海寛
  • 第1課題 優秀作品:太田海寛
  • 第1課題 優秀作品:太田海寛
  • 第1課題 優秀作品:太田海寛
  • 第1課題 優秀作品:太田海寛
  • 第1課題 優秀作品:太田海寛

第1課題 優秀作品

太田海寛

講評

敷地をみたときの「建物を浮かしたい」という着想をもとに、地形としての設計された地下部分と、軽やかに浮いたボリュームの対比が印象的である。地域との関係を創出するためにピアノをプランニングの中心とした点も評価できる。


  • 第1課題 優秀作品:前田千陽
  • 第1課題 優秀作品:前田千陽
  • 第1課題 優秀作品:前田千陽
  • 第1課題 優秀作品:前田千陽
  • 第1課題 優秀作品:前田千陽
  • 第1課題 優秀作品:前田千陽
  • 第1課題 優秀作品:前田千陽

第1課題 優秀作品

前田千陽

講評

周辺から読み取った「庭」という特徴を建築の要素へと活かし、外から内へ庭との関係性で計画された案。敷地外の好ましい風景がこの住宅により地域に拡張していくような公共的な提案となっている。内部と庭の関係にさらに工夫があるとよかった。


  • PD課題 優秀作品:「画像1」坂本晴「画像2」望月香歩「画像3」島田望「画像4」鈴木亮平「画像5」江口雄太「画像6」田中友紀子「画像7」田中優矢「画像8」堤田康洋「画像9」鶴川陽生
  • PD課題 優秀作品:「画像1」坂本晴「画像2」望月香歩「画像3」島田望「画像4」鈴木亮平「画像5」江口雄太「画像6」田中友紀子「画像7」田中優矢「画像8」堤田康洋「画像9」鶴川陽生
  • PD課題 優秀作品:「画像1」坂本晴「画像2」望月香歩「画像3」島田望「画像4」鈴木亮平「画像5」江口雄太「画像6」田中友紀子「画像7」田中優矢「画像8」堤田康洋「画像9」鶴川陽生
  • PD課題 優秀作品:「画像1」坂本晴「画像2」望月香歩「画像3」島田望「画像4」鈴木亮平「画像5」江口雄太「画像6」田中友紀子「画像7」田中優矢「画像8」堤田康洋「画像9」鶴川陽生
  • PD課題 優秀作品:「画像1」坂本晴「画像2」望月香歩「画像3」島田望「画像4」鈴木亮平「画像5」江口雄太「画像6」田中友紀子「画像7」田中優矢「画像8」堤田康洋「画像9」鶴川陽生
  • PD課題 優秀作品:「画像1」坂本晴「画像2」望月香歩「画像3」島田望「画像4」鈴木亮平「画像5」江口雄太「画像6」田中友紀子「画像7」田中優矢「画像8」堤田康洋「画像9」鶴川陽生
  • PD課題 優秀作品:「画像1」坂本晴「画像2」望月香歩「画像3」島田望「画像4」鈴木亮平「画像5」江口雄太「画像6」田中友紀子「画像7」田中優矢「画像8」堤田康洋「画像9」鶴川陽生
  • PD課題 優秀作品:「画像1」坂本晴「画像2」望月香歩「画像3」島田望「画像4」鈴木亮平「画像5」江口雄太「画像6」田中友紀子「画像7」田中優矢「画像8」堤田康洋「画像9」鶴川陽生
  • PD課題 優秀作品:「画像1」坂本晴「画像2」望月香歩「画像3」島田望「画像4」鈴木亮平「画像5」江口雄太「画像6」田中友紀子「画像7」田中優矢「画像8」堤田康洋「画像9」鶴川陽生

PD課題 優秀作品

「画像1」坂本晴「画像2」望月香歩「画像3」島田望「画像4」鈴木亮平「画像5」江口雄太「画像6」田中友紀子「画像7」田中優矢「画像8」堤田康洋「画像9」鶴川陽生

講評

「画像1」設計のコンセプトであるエッシャーをモチーフにした迷宮的な構成がよく表現されていました。作品タイトルも建築物と同じ表現方法で、躯体表現に溶け込ませていたのは見事でした。「画像2」平面図を2枚並べ、個室内/個室外のあり方を対比的に表現している。めりはりのきいた着彩と手描のグラデーションやぼかしも対比的で印象的です。タイトルは再考したい。「画像3」平面図をベースに構成要素の中心である縁側と川を中心とした周辺環境との繋がりを美しいインキングと着彩で表現している。用紙もテクスチャのあるものをしようしており、着彩表現への高い意識が伺える。「画像4」平面図をベースにできるだけ抽象度を保ちながら、視線を意識した住宅であることをうまくグラフィカルに表現できている。敷地より外までラインを伸ばした勢いも良い。「画像5」平面図に一点透視図を重ね、窓に張ったことで透けるようにキュレーションした。窓からの景色と画に張った景色が重なりシュールな効果をもたらした。自分で意図的に作り出した成果ではないと思うが。「画像6」建物を分割して周辺の建物大きさに馴染ませる街のスケールの話と、そのボリュームにプライベートなスペースと集まるスペースを分けたことを断面パースと暖かい色使いで巧みに表現した。「画像7」ぶどう棚をもつ外部の中庭の断面パースで視点を下げて描いている。垂直ののびやかさを演出したことで空間的な特性と光の質感、周囲の空間の想像力を掻き立てている。「画像8」背景、図面、テキストという3つの異なるメディアを組み合わせ、キッチンを中心とした設計案の説得性を高めている。色使いや情報の取捨選択にセンスを製作者のセンスが感じられる。「画像9」廊下を外部化した住宅のドローイングで、動線部の空間だけ抜き出し、晴れと雨の違いを2色の背景で明快に表現した。レイアウトやタイトルの入れ方も秀逸で、美しく完成度の高いプレゼンテーション。


  • 第2課題 優秀作品:澤田 ひか梨
  • 第2課題 優秀作品:澤田 ひか梨
  • 第2課題 優秀作品:澤田 ひか梨
  • 第2課題 優秀作品:澤田 ひか梨
  • 第2課題 優秀作品:澤田 ひか梨

第2課題 優秀作品

澤田 ひか梨

講評

隣地の公園をヒントにこの敷地にとどまらず、生田の森を目指そうとする設計の範疇の大きさに驚きました。ドローイングが美しく、立面図・断面図による環境と作品の一体性が色濃く表れています。


  • 第2課題 優秀作品:呉 愛花
  • 第2課題 優秀作品:呉 愛花
  • 第2課題 優秀作品:呉 愛花
  • 第2課題 優秀作品:呉 愛花
  • 第2課題 優秀作品:呉 愛花

第2課題 優秀作品

呉 愛花

講評

イサムノグチによるマテリアルへの探求に触発され、大きな樹木を構造体として、空間全体を構成した提案。不定形な樹木のかたちをいかし、ダイナミックな空間が生まれている。


  • 第2課題 優秀作品:滝澤 紗葵良
  • 第2課題 優秀作品:滝澤 紗葵良
  • 第2課題 優秀作品:滝澤 紗葵良
  • 第2課題 優秀作品:滝澤 紗葵良
  • 第2課題 優秀作品:滝澤 紗葵良
  • 第2課題 優秀作品:滝澤 紗葵良
  • 第2課題 優秀作品:滝澤 紗葵良
  • 第2課題 優秀作品:滝澤 紗葵良

第2課題 優秀作品

滝澤 紗葵良

講評

周辺のリサーチから発見した軸線から建築にキレツをつくり、生まれるズレや隙間から、発見的で豊かな空間を作り出した。塊から削り出すように作られた空間は、作品がなくてもイサムノグチの美術館として成立しそうな強度がある。


  • 第2課題 優秀作品:西塚太一
  • 第2課題 優秀作品:西塚太一
  • 第2課題 優秀作品:西塚太一
  • 第2課題 優秀作品:西塚太一
  • 第2課題 優秀作品:西塚太一
  • 第2課題 優秀作品:西塚太一
  • 第2課題 優秀作品:西塚太一
  • 第2課題 優秀作品:西塚太一
  • 第2課題 優秀作品:西塚太一
  • 第2課題 優秀作品:西塚太一

第2課題 優秀作品

西塚太一

講評

周辺の環境に見合ったスケール感で上階に展示室を設け、1F部分はできるだけ公園や住宅の街並みに対してパグリックな機能を配置し、誰でも受け入れるような空間を作っているところがうまく成り立っていると思います。


  • 第2課題 優秀作品:奥山優生
  • 第2課題 優秀作品:奥山優生
  • 第2課題 優秀作品:奥山優生
  • 第2課題 優秀作品:奥山優生
  • 第2課題 優秀作品:奥山優生
  • 第2課題 優秀作品:奥山優生

第2課題 優秀作品

奥山優生

講評

ノグチの作品の理解を深め、個々の作品特有の個性を導き出すとともに全体を繋げた物語を作り出し、空間と動線を使って表した。


  • 第2課題 優秀作品:高田 奈生
  • 第2課題 優秀作品:高田 奈生
  • 第2課題 優秀作品:高田 奈生
  • 第2課題 優秀作品:高田 奈生
  • 第2課題 優秀作品:高田 奈生

第2課題 優秀作品

高田 奈生

講評

質感のある屏風のようだったり波打ったりする壁を背景に彫刻作品を見るということに始まり、その自立する壁のレイアウトで内部と外部を巧みに隔てながら、壁の立て方で人や視線の動きをコントロールするというオープンエンドで汎用性のある設計で建物そのものも彫刻のように魅せる力作。


  • 第2課題 優秀作品:瀬口悠樹
  • 第2課題 優秀作品:瀬口悠樹
  • 第2課題 優秀作品:瀬口悠樹
  • 第2課題 優秀作品:瀬口悠樹
  • 第2課題 優秀作品:瀬口悠樹
  • 第2課題 優秀作品:瀬口悠樹
  • 第2課題 優秀作品:瀬口悠樹
  • 第2課題 優秀作品:瀬口悠樹
  • 第2課題 優秀作品:瀬口悠樹

第2課題 優秀作品

瀬口悠樹

講評

公園や周辺環境に連続する開放的な美術館をシンプルな門型フレームの組合せでつくる案。大小の門型フレーム群がつくる隙間や粗密、高低差の中から鑑賞空間をはじめとする機能空間を見い出している。


  • 第2課題 優秀作品:山本佑羽
  • 第2課題 優秀作品:山本佑羽
  • 第2課題 優秀作品:山本佑羽
  • 第2課題 優秀作品:山本佑羽
  • 第2課題 優秀作品:山本佑羽
  • 第2課題 優秀作品:山本佑羽
  • 第2課題 優秀作品:山本佑羽
  • 第2課題 優秀作品:山本佑羽

第2課題 優秀作品

山本佑羽

講評

周辺と合わせた小さいボリュームで作られた地上部の「あつまる場所」と地下部の作品を「発見する」体験的な美術館が造形的にも空間的にも高い水準で表現されている。石の時間と光だけは入るようにした地下空間という恒久性を感じさせる空間とのリンクがイサムノグチの美術館としてふさわしい。


  • 第2課題 優秀作品:木村希蒔郎
  • 第2課題 優秀作品:木村希蒔郎
  • 第2課題 優秀作品:木村希蒔郎
  • 第2課題 優秀作品:木村希蒔郎
  • 第2課題 優秀作品:木村希蒔郎
  • 第2課題 優秀作品:木村希蒔郎

第2課題 優秀作品

木村希蒔郎

講評

美術作品への向き合い方として、「ぶら下がりながら鑑賞」するという方法で鑑賞者の身体状況をテーマにした着想は、他の課題にはない批評性があった。